
2月8日,經歷12天爭分奪秒的奮戰,武漢雷神山醫院也交付使用了,隨著各種建造、設備技術的發展,雷神山的標準比小湯山高很多,醫療硬件更強,污水處理、空氣凈化等技術更加先進,也將醫院對周邊環境的影響降到了最低。今天說一說雷神山醫院的機電工程中的一個重要元素“水”元素。? ??

1、 從logo解讀風“水”
中國人建房都講究風水,先解讀從雷神山logo的設計解讀一下風“水”, 雷神山logo三個元素:蓮花,雷電,盾牌,再加一個“十”字醫院標識。其中盾牌代表著保護、守護。雷電在中國傳統文化中代表著驅邪,蓮花在道教文化中有救世渡人之意。而雷在八卦中震,五行屬木,所以采用綠色基調。

2、 關于“污水”的有效處理
雷神山醫院的污水來源較復雜,要充分考慮到宿舍、病房、醫用設備等排放,還有含有病毒的等,若考慮不周全,則會對周邊的環境造成污染,因此需要能有效的處理才能排放或納管。
同時,為了避免醫院的雨水會滲透到地下,雷神山醫院建設施工過程中,利用hdpe防滲膜,為雷神山醫院12萬平方米防滲膜全覆蓋,為地下基礎穿上“防護服”,不讓一滴污水進入地下,雨水全收集全消毒,不會污染到周圍周邊湖泊和土壤。


3、 確保生活用水的安全、方便
雷神山醫院是ncp(新冠病毒)集中的地方,安全的飲用水是至關重要的。為此,很多凈水設備廠商為武漢雷神山醫院捐贈了凈水系統,主要用的是反滲透機型,反滲透膜又叫ro過濾膜,ro反滲透膜表面微孔的直徑一般在0.5-10nm之間,是頭發絲的一百萬分之一(0.0001微米),肉眼無法看到,細菌、病毒是它的5000倍。對一價鹽分氯化鈉的截留率可以高達99.5%以上,利用反滲透ro膜技術,可以確保水中的細菌、病毒、雜質、重金屬等均被去除,僅允許水分子透過ro膜,獲得純凈水,確保雷神山的醫患人員的飲水安全。
除了確保飲用水的安全外,寒冷的冬季熱水的充足供應也是必不可少的。 醫院病房區洗手間采用單元式電熱水器供應熱水,洗手龍頭和淋浴都有熱水。每個衛生間設置儲熱容積為100l的電熱水器,電熱水器水溫穩定且溫度可調節,確保舒適好用,采用水電分離技術,確保安全。

反滲透膜過濾示意圖,圖片來源:迪奧水處理

衛生間給水和熱水,藍色為熱水管,綠色為給水管
4、 給水
雷神山醫院給水三路環狀供水。在短時間內武漢水務集團升級內部原有供水系統,水表擴容、增加轉壓設施、增設水質監測點,保障了醫院安全優質用水的關鍵。

圖片來源:長江日報
室外給水管道為生活和消防各自單獨設管道系統,均由市政供水。為保證室內外給水和消防用水,當其中一條進水管發生故障時,其他進水管應仍能保證用水量。這個設計沒有什么特殊的。
室內給水,為了滿足本項目的生活用水水量和水壓的要求,本項目未采用直接市政壓力直接供水,而是采用一體化生活泵房變頻供水。這個設計沒有什么特殊的。
特殊的是:
第一,污染區和清潔區的給水管道分別設置,污染區的給水管道上設置倒流防止器,給水設置檢修閥門,閥門設在清潔區內。
第二,給水預留消毒劑接口,設應急加氯設施確保水質安全,達到傳染病應急醫院的建造標準。
第三,消防用水、給排水管道不穿越無菌室,穿越時采取了防漏措施。
5、冷凝水
雷神山醫院所有安裝分體空調機的病房冷凝水都不得隨意排放,空調冷凝水應集中收集,最后同污水、廢水集中消毒處理后再排放。冷凝水一般水質比較干凈,可以直排,考慮到ncp病毒氣溶膠有可能附著在空調設備上,進入冷凝水,所以必須進行消毒才能排放。這一點不同于一般的民用建筑。
6、 地漏排水
雷神山醫院準備間、污洗間、衛生間、浴室、空調機房設置地漏,但是護士室、治療室、診室、檢驗科、醫生辦公室等房間不設地漏。地漏采用帶過濾網的無水封地漏加存水彎,存水彎的水封不小于50mm;可采用洗手盆的排水給地漏水封補水;用于手術室、急診搶救室等房間的地漏采用可開啟的密封地漏。
7、節水
醫護人員用水點均采用非接觸性或非手動開關,龍頭采用感應水龍頭和帶腳踏沖洗閥的蹲式大便器。公共衛生間洗手盆也采用感應自動水龍頭,小便斗配自動感應式沖洗閥。病房采用坐式大便器,采用二檔低水箱坐式大便器。

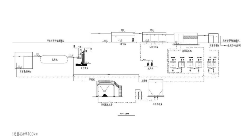
雷神山醫院污水處理設計
工程由中建三局一公司牽頭實施,并負責醫療隔離區施工,中建三局基建投公司負責醫護住宿區施工,中建三局綠投公司負責醫療污水處理設施安裝等相關施工。
雷神山醫院污水處理采用生化處理,如下圖(點擊圖片查看大圖),流程為:接觸消毒-化糞池-調節池-mbbr池-高效沉淀池-消毒-排至市政污水管網!

圖1:雷神山污水處理平面圖

圖2:雷神山污水處理剖面圖
附:《mbbr調試方案》
mbbr(載體流動床移動床生物膜反應器)原理是通過向反應器中投加一定數量的懸浮載體,提高反應器中的生物量及生物種類,從而提高反應器的處理效率。由于填料密度接近于水,所以在曝氣的時候,與水呈完全混合狀態,另外,每個載體內外均具有不同的生物種類,內部生長一些厭氧菌或兼氧菌,微生物生長的環境為氣、液、固三相。載體在水中的碰撞和剪切作用,使空氣氣泡更加細小,增加了氧氣的利用率外部為好養菌,這樣每個載體都為一個微型反應器,使硝化反應和反硝化反應同時存在,從而提高了處理效果。
1.設備調試
開啟水處理設施、管道中所有閥門和閘閥,啟動進水泵送水,根據各構筑物進水情況,沿工藝流程適時啟動其他設備。在此過程中應做好以下幾方面工作:
1.檢查進線總電流是否符合要求,變配電設備工作是否正常,各種設備工作情況是否正常以及能否滿足設計要求,儀器儀表工作是否正常,自控系統能否滿足設計要求。
2.用容積法校核進、出水流量計計量是否準確,校核在線監測儀,檢測進、出水水質,流速,測量并記錄設備的電壓、電流、功率和轉速。
3.及時解決試車過程中發現的問題。
4.編制設備操作規程。
2.mbbr生物膜的培養
生物膜的培養實質就是在一段時間內,通過一定的手段,使處理系統中產生并積累一定量的微生物、使生物膜達到一定厚度,其培養方式主要有靜態培養和動態培養。
◆ 靜態培養
所謂的靜態培養是:為了防止新生微生物隨水流走,盡可能的提供微生物與填料層的接觸時間,為加快生物膜的形成,開始階段為了避免由于廢水營養單一,故每天一次以bod5;n:p=100:5:1比例投加尿素、二胺、白糖等營養底物。首先將接種污泥(10%生化有效體積)和廢水泵打入生化池內,然后開始曝氣培養。生化池內填料的堆放體積按反應池有效容積35%~40%。靜置4-5h不曝氣,使固著態微生物接種到填料上,然后曝氣1h,再靜置2h,曝氣1h,重復操作,4-5天后,填料表面已全部掛上生物膜,第6天開始連續小水量進水。
◆ 動態培養
經過6天的悶曝培養,填料表面已經生長了薄薄一層黃褐色生物膜,故改為連續進水,進行動態培養,調整進水量,控制溶解氧在2~4mg/l之間(用溶氧儀測定溶解氧)。約15天之后,填料上有一些變形蟲、漫游蟲(用生物顯微鏡觀察),手摸填料有粘性、滑膩感,在20天以后出現鞭毛蟲、鐘蟲、草履蟲游離菌等原生動物。在經過20天的培養出現輪蟲、線蟲等后生動物,標志生物膜已經長成??梢蚤_始連續工業運行。
3.生物膜的馴化
馴化的目的是選擇適應實際水質情況的微生物,淘汰無用的微生物,對于有脫氮除磷功能的處理工藝,通過馴化使硝化菌、反硝化菌、聚磷菌成為優勢菌群。具體做法是首先保持工藝的正常運轉,然后,嚴格控制工藝控制參數,do平均應控制在2~3mg/l之間,好氧池曝氣時間不小于5小時,在此過程中,每天做好各項水質指標和控制參數的測定,當生物膜的平均厚度在0.2-0.5mm左右生物膜培養即告成功,直到出水bod5、ss、codcr等各項指標達到設計要求。
|免責聲明:本文系網絡轉載。如涉及版權,請聯系刪除。
為配合打贏疫情防控阻擊戰,避免人員聚集引發交叉感染,保障所有展商、觀眾及參會人員的安全和健康,主辦方決定,將原定于2020年6月3-5日在上海國家會展中心(虹橋)舉辦的第九屆上海國際泵管閥展覽會將延期至2020年8月25-27日舉辦。
附件:









